找回密码
 立即注册

QQ登录

只需一步,快速开始

查看: 14116|回复: 7

[求助] 菜鸟求教,用可变截面创建凸轮,扫描截面位置变化导致创建失败。

[复制链接]

3

主题

36

回帖

0

威望

实习生

积分
46
发表于 2021-3-18 16:36 | 显示全部楼层 |阅读模式
悬赏10金钱未解决
一个很简单的凸轮模型,换一下扫描截面草绘的位置会导致创建失败。求大神指教!
这是二维图
微信截图_20210318162557.jpg
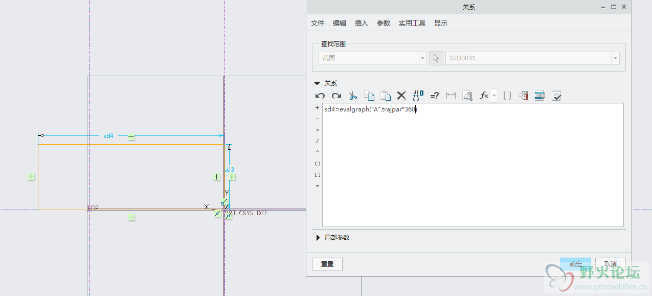
创建图形命名为A,
按照上面的尺寸能创建成功。
微信截图_20210318162752.png
微信截图_20210318163030.png
微信截图_20210318162911.png
但是如果我去除凸轮中间的孔做成实心的。却创建失败。
微信截图_20210318163449.png
微信截图_20210318163633.png
但是恒定截面可以创建成功
微信截图_20210318163700.png

15

主题

173

回帖

2

威望

工程师

积分
258
发表于 2021-3-18 17:05 | 显示全部楼层
看你的截图感觉你的中心线不对啊
回复

使用道具 举报

15

主题

173

回帖

2

威望

工程师

积分
258
发表于 2021-3-18 17:17 | 显示全部楼层
矩形边应该在中心线哪里不是在扫描线的中间
1616059198(1).png
回复

使用道具 举报

3

主题

36

回帖

0

威望

实习生

积分
46
 楼主| 发表于 2021-3-19 08:31 | 显示全部楼层
chenshichang168 发表于 2021-3-18 17:17
矩形边应该在中心线哪里不是在扫描线的中间

不行的 只要截面与中心线相交就创建失败
微信截图_20210319081112.png 微信截图_20210319081133.png
微信截图_20210319080641.png
回复

使用道具 举报

15

主题

173

回帖

2

威望

工程师

积分
258
发表于 2021-3-20 09:44 | 显示全部楼层
我的可以,给你看看,creo5.0
回复

使用道具 举报

15

主题

173

回帖

2

威望

工程师

积分
258
发表于 2021-3-20 09:45 | 显示全部楼层
看看5.0

prt0015.prt.rar

72.52 KB, 下载次数: 3

回复

使用道具 举报

3

主题

36

回帖

0

威望

实习生

积分
46
 楼主| 发表于 2021-3-22 08:30 | 显示全部楼层
本帖最后由 liuxzs 于 2021-3-22 08:34 编辑


这样是可以啊,我的也行 做成实心的就不行了。 我不知道哪里的细节出问题了。  有时候行,有时候不行。
回复

使用道具 举报

8

主题

315

回帖

3

威望

工程师

积分
383
发表于 2021-3-22 14:36 | 显示全部楼层
受教了,表示还不会这么高级的方法
回复

使用道具 举报

您需要登录后才可以回帖 登录 | 立即注册

本版积分规则

关闭

站长推荐上一条 /1 下一条

本站为非营利性站点,部分资源为网友搜集或发布,仅供学习和研究使用,如用于商业用途,请购买正版。站内所发布的资源,如有侵犯你的权益,请发邮件联系我们,本站将立即改正或删除。

手机版|小黑屋|野火论坛(©2007~2025) ( 苏ICP备11036728号-2 )苏公网安备 32039102000103号|站长QQ28016688

GMT+8, 2025-12-29 09:45 , Processed in 0.145397 second(s), 28 queries .

快速回复 返回顶部 返回列表