找回密码
 立即注册

QQ登录

只需一步,快速开始

查看: 6095|回复: 4

[求助] 夹具图指点

[复制链接]

9

主题

61

回帖

3

威望

助工

积分
86
发表于 2008-3-18 00:06 | 显示全部楼层 |阅读模式
那位高人帮我指点一下,我这个装配图制作2D图时,螺栓、螺母和支撑元件是不能打剖面线的,记得论坛有个不剖筋的例子,但我这个也太棘手了、

[ 本帖最后由 god_paul 于 2008-3-18 00:37 编辑 ]
未命名.jpg
同时在两处压紧零件的液压压紧装置2.jpg

1288

主题

4万

回帖

900

威望

管理员

积分
47506

社区建设勋章优秀斑竹勋章原创先锋勋章热心助人勋章宣传大使勋章斑竹勋章

发表于 2008-3-18 08:02 | 显示全部楼层
如果你是要做上面2维的剖视图的话, 把不需要剖的元件排除就可以了

如何指定部件不被剖切
http://www.proewildfire.cn/thread-275-1-1.html
Pro/E装配工程图中指定某个零部件(如轴)不画剖面的方法
http://www.proewildfire.cn/thread-273-1-1.html

[ 本帖最后由 野火 于 2008-3-18 08:03 编辑 ]
努力,认真解答网友的每一个问题,共同学习,一起进步!  请勿发论坛消息求助。
回复

使用道具 举报

9

主题

61

回帖

3

威望

助工

积分
86
 楼主| 发表于 2008-3-18 09:17 | 显示全部楼层
太感谢了!!
如若不是这样,我估计要手动先把2D图打散,然后一根根删除。。。。
回复

使用道具 举报

9

主题

61

回帖

3

威望

助工

积分
86
 楼主| 发表于 2008-3-18 09:55 | 显示全部楼层
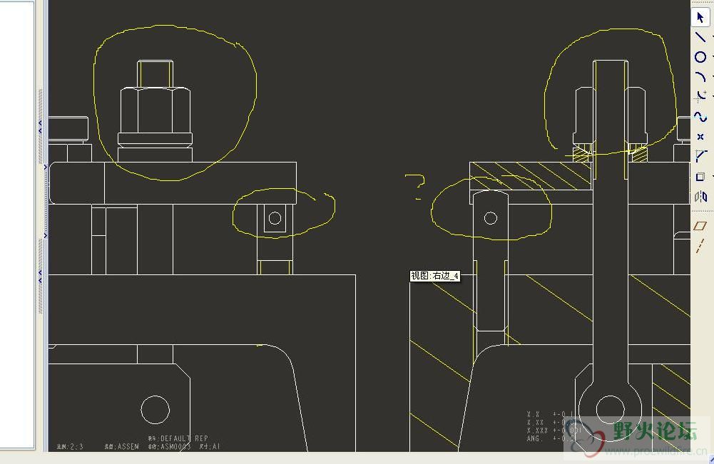
但是这样又碰到新的问题 ,请看图,由于螺母,螺栓,支撑都在一条水平线上,这样被我一刀切下去,然后再排出截面,可是得到的是已经被剖一半的截面了,我既要不大剖面,又要保留特征原始样子,就像图中的支撑那样,那我该如何做呢,谢谢
未命名.jpg
回复

使用道具 举报

1288

主题

4万

回帖

900

威望

管理员

积分
47506

社区建设勋章优秀斑竹勋章原创先锋勋章热心助人勋章宣传大使勋章斑竹勋章

发表于 2008-3-18 22:25 | 显示全部楼层
3维状态下可以做出你要的效果,但是不能显示剖面线
努力,认真解答网友的每一个问题,共同学习,一起进步!  请勿发论坛消息求助。
回复

使用道具 举报

您需要登录后才可以回帖 登录 | 立即注册

本版积分规则

关闭

站长推荐上一条 /1 下一条

本站为非营利性站点,部分资源为网友搜集或发布,仅供学习和研究使用,如用于商业用途,请购买正版。站内所发布的资源,如有侵犯你的权益,请发邮件联系我们,本站将立即改正或删除。

手机版|小黑屋|野火论坛(©2007~2025) ( 苏ICP备11036728号-2 )苏公网安备 32039102000103号|站长QQ28016688

GMT+8, 2025-12-30 02:26 , Processed in 0.121623 second(s), 28 queries .

快速回复 返回顶部 返回列表