找回密码
 立即注册

QQ登录

只需一步,快速开始

查看: 27997|回复: 5

[原创] 工程图 球标序号 更改

[复制链接]

7

主题

264

回帖

8

威望

工程师

积分
300
发表于 2019-11-14 19:46 | 显示全部楼层 |阅读模式
本帖最后由 eimas 于 2019-11-14 19:48 编辑

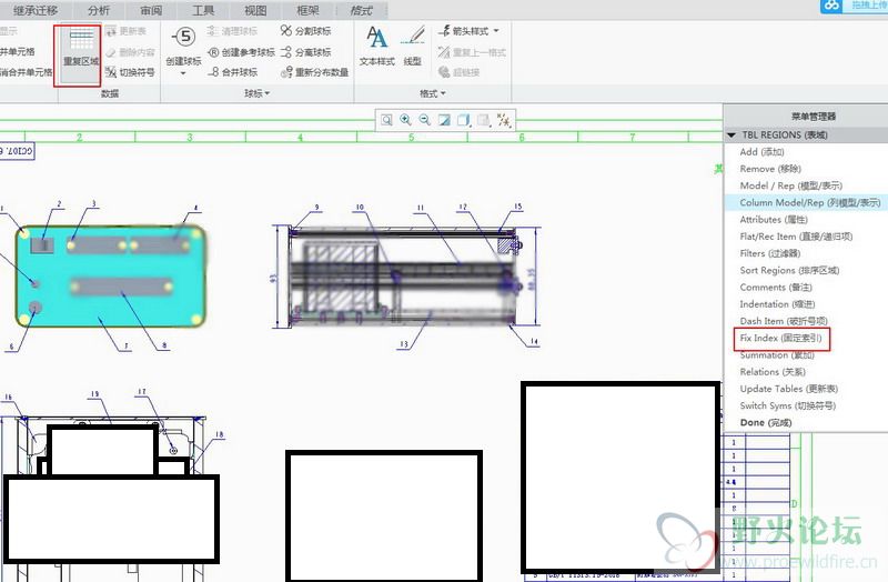
发个简易教程,小白的童鞋可以看看学习下;|
CREO工程图下的球标标注,会按照表里面的序列排列。在图上显示出来就会显得无序,有些公司的图档标准是要按照特定规律来编辑这些球标顺序的;
该如何修改,可以利用表格里面的固定索引功能来实现。
选择表页面下的“重复区域”-》点击表-》弹出的菜单里选“”固定索引“”-》选择要改序号的行,点击,在对话框里输入需要的序列号。完成。
03_resize.jpg
55_resize.jpg

评分

参与人数 1威望 +1 金钱 +4 收起 理由
野火 + 1 + 4 感谢分享

查看全部评分

29

主题

232

回帖

7

威望

工程师

积分
329
发表于 2019-11-14 19:52 | 显示全部楼层
收到,3Q
回复

使用道具 举报

0

主题

86

回帖

0

威望

助工

积分
93
发表于 2022-10-10 11:43 | 显示全部楼层
感谢,已学习
回复

使用道具 举报

107

主题

2698

回帖

300

威望

教授

积分
3842

热心助人勋章宣传大使勋章优秀会员勋章希望之星勋章

发表于 2023-8-10 10:21 | 显示全部楼层
学习,顶一下。
回复 1 0

使用道具 举报

0

主题

400

回帖

2

威望

工程师

积分
473
发表于 2023-9-23 15:39 | 显示全部楼层
谢谢分享
回复

使用道具 举报

0

主题

133

回帖

0

威望

助工

积分
143
发表于 2023-11-7 14:45 | 显示全部楼层
打开论坛就有新知识,学习了。
回复

使用道具 举报

您需要登录后才可以回帖 登录 | 立即注册

本版积分规则

关闭

站长推荐上一条 /1 下一条

本站为非营利性站点,部分资源为网友搜集或发布,仅供学习和研究使用,如用于商业用途,请购买正版。站内所发布的资源,如有侵犯你的权益,请发邮件联系我们,本站将立即改正或删除。

手机版|小黑屋|野火论坛(©2007~2025) ( 苏ICP备11036728号-2 )苏公网安备 32039102000103号|站长QQ28016688

GMT+8, 2025-11-10 05:19 , Processed in 0.138591 second(s), 33 queries .

快速回复 返回顶部 返回列表