找回密码
 立即注册

QQ登录

只需一步,快速开始

查看: 14907|回复: 11

[求助] 工程图中BOM表过滤问题

[复制链接]

2

主题

45

回帖

0

威望

助工

积分
56
发表于 2018-10-26 08:49 | 显示全部楼层 |阅读模式
悬赏10金钱未解决

这是3D结构

这是3D结构

这是工程图中的BOM表

这是工程图中的BOM表

我只想保留最顶阶以及最低阶的,并且数量要正确

5

主题

305

回帖

0

威望

工程师

积分
340
QQ
发表于 2018-10-26 08:57 | 显示全部楼层
同样问题
回复

使用道具 举报

25

主题

1700

回帖

213

威望

教授

积分
3169

热心助人勋章优秀会员勋章希望之星勋章

发表于 2018-10-26 09:24 | 显示全部楼层
   不知道你能不能看懂我的图
Image 2.png
Image 3.png
Image 1.png

评分

参与人数 1威望 +1 收起 理由
野火 + 1 热心助人

查看全部评分

回复

使用道具 举报

2

主题

45

回帖

0

威望

助工

积分
56
 楼主| 发表于 2018-10-26 10:01 | 显示全部楼层
340047351 发表于 2018-10-26 09:24
不知道你能不能看懂我的图

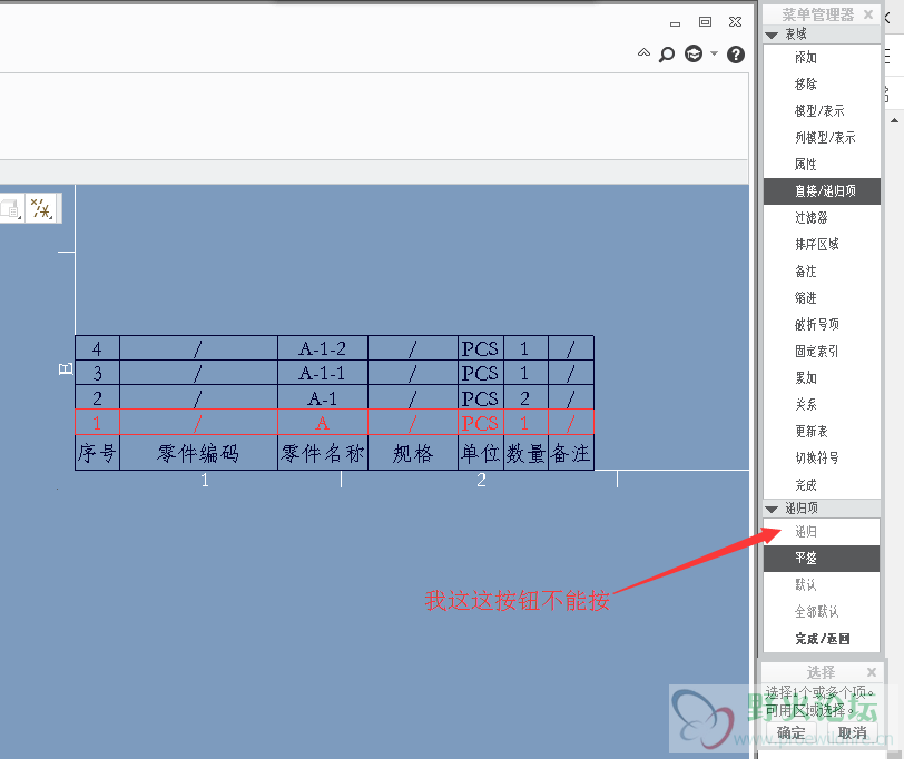
QQ图片20181026100532.png
我这个按钮是灰色的,不能按
回复

使用道具 举报

2

主题

45

回帖

0

威望

助工

积分
56
 楼主| 发表于 2018-10-26 10:13 | 显示全部楼层
340047351 发表于 2018-10-26 09:24
不知道你能不能看懂我的图

还有,我需要留下的是:“A","A-1-1","A-1-2"。不要的是:“A-1”。
而你的效果是:留下的是:“A-1","A-1-1","A-1-2"。不要的是:“A”。
回复

使用道具 举报

6

主题

87

回帖

2

威望

助工

积分
124
发表于 2018-10-26 10:19 | 显示全部楼层
知道你的意思了,有二种方法
1.需要另设置一个参数,这个参数得设在 零件模版里,同时把这个参数增加进你的BOM表 ,同时设置关系式;
2.就是零件模版里面有没有设置参数,就直接把在选择区域的时候不要选择 数量 自定义了 随你写;如果为了防止出错 那就把区域不要选到备注,在备注里面改一下

评分

参与人数 1威望 +1 收起 理由
野火 + 1 热心助人

查看全部评分

回复

使用道具 举报

2

主题

45

回帖

0

威望

助工

积分
56
 楼主| 发表于 2018-10-26 10:34 | 显示全部楼层
597339770 发表于 2018-10-26 10:19
知道你的意思了,有二种方法
1.需要另设置一个参数,这个参数得设在 零件模版里,同时把这个参数增加进你 ...

不明觉厉。可以详细吗
回复

使用道具 举报

6

主题

87

回帖

2

威望

助工

积分
124
发表于 2018-10-26 10:34 | 显示全部楼层
你只改名称   是不是 想在工程图里面改,那就用第一方法。
回复

使用道具 举报

6

主题

87

回帖

2

威望

助工

积分
124
发表于 2018-10-26 10:42 | 显示全部楼层
你要设置一个零件模版   并把这个模版设置为你的启动模版,再在这个模版里面参加几个参数其中一个参数设置为1;然后在工程图里面参加一个IF语句 让你让为1的时候,显示是你系统的名称,不为1的时候显示为你改的字符。
回复

使用道具 举报

2

主题

45

回帖

0

威望

助工

积分
56
 楼主| 发表于 2018-10-26 10:43 | 显示全部楼层
597339770 发表于 2018-10-26 10:34
你只改名称   是不是 想在工程图里面改,那就用第一方法。

"1.需要另设置一个参数,这个参数得设在 零件模版里,同时把这个参数增加进你的BOM表 ,同时设置关系式;"
参数是什么?关系式是什么?这些我都不知道啊
回复

使用道具 举报

您需要登录后才可以回帖 登录 | 立即注册

本版积分规则

关闭

站长推荐上一条 /1 下一条

本站为非营利性站点,部分资源为网友搜集或发布,仅供学习和研究使用,如用于商业用途,请购买正版。站内所发布的资源,如有侵犯你的权益,请发邮件联系我们,本站将立即改正或删除。

手机版|小黑屋|野火论坛(©2007~2025) ( 苏ICP备11036728号-2 )苏公网安备 32039102000103号|站长QQ28016688

GMT+8, 2025-12-22 08:12 , Processed in 0.153284 second(s), 32 queries .

快速回复 返回顶部 返回列表