找回密码
 立即注册

QQ登录

只需一步,快速开始

查看: 1508|回复: 14

[练习] 看看是不是不对

[复制链接]

11

主题

215

回帖

1

威望

工程师

积分
289
发表于 2024-9-21 18:24 | 显示全部楼层 |阅读模式
本帖最后由 惜惜2 于 2024-9-21 21:19 编辑

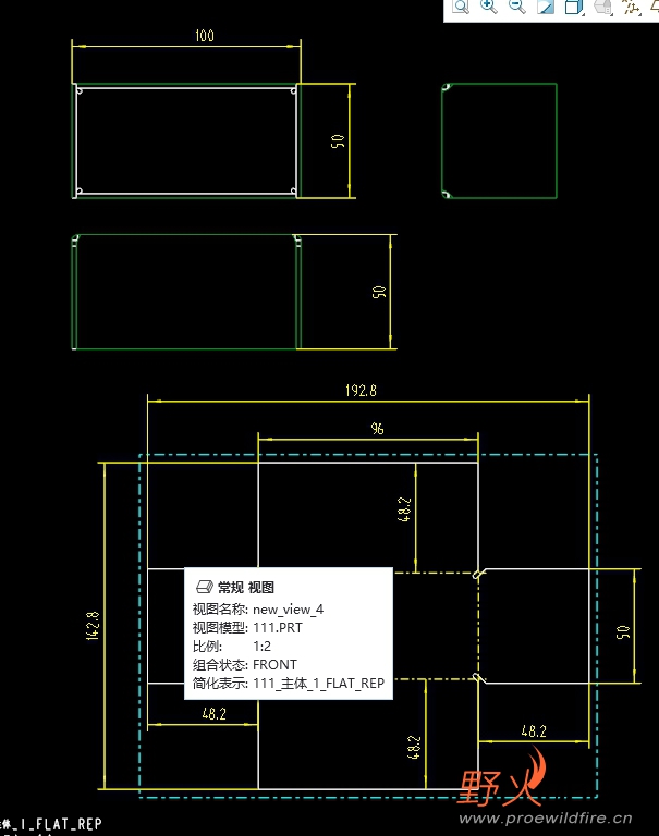
这个是我们的工程画的图纸,我讲展开不对,非说是对的。大家帮忙看看,想知道是哪个培训机构出来的,来认领一下,我顺便也去深造一下子
11.png

0921.rar

63.4 KB, 下载次数: 14

学无止境

163

主题

2122

回帖

522

威望

教授

积分
3746

热心助人勋章优秀会员勋章希望之星勋章嘉宾勋章

QQ
发表于 2024-9-21 19:29 | 显示全部楼层
本帖最后由 fuguangyi 于 2024-9-21 19:37 编辑

1.png

冷板,

不同的公司有不同的折弯表

四角看你怎么处理
2.png

3.png

评分

参与人数 1威望 +1 收起 理由
野火 + 1 热心助人

查看全部评分

回复

使用道具 举报

11

主题

215

回帖

1

威望

工程师

积分
289
 楼主| 发表于 2024-9-21 19:35 | 显示全部楼层
fuguangyi 发表于 2024-9-21 19:29


兄弟,你没有看懂设计意图,他这个是按99来的,并且成型展开下料也是😅
学无止境
回复

使用道具 举报

11

主题

215

回帖

1

威望

工程师

积分
289
 楼主| 发表于 2024-9-21 19:40 | 显示全部楼层
fuguangyi 发表于 2024-9-21 19:29
冷板,

不同的公司有不同的折弯表

和折弯扣除没有影响,这个是按3.3的扣的,工艺孔也没有关系,原有图纸有个2.0的圆孔,问题点不在这
学无止境
回复

使用道具 举报

163

主题

2122

回帖

522

威望

教授

积分
3746

热心助人勋章优秀会员勋章希望之星勋章嘉宾勋章

QQ
发表于 2024-9-21 19:43 | 显示全部楼层
本帖最后由 fuguangyi 于 2024-9-21 19:48 编辑
惜惜2 发表于 2024-9-21 19:35
兄弟,你没有看懂设计意图,他这个是按99来的,并且成型展开下料也是😅 ...


考虑公差,长度方向小些,但是,四角没有撕裂槽,折的时候会出现问题吧

展开图不标注折弯位置,怎么对刀啊

长度按99:

4.png
回复

使用道具 举报

11

主题

215

回帖

1

威望

工程师

积分
289
 楼主| 发表于 2024-9-21 19:46 | 显示全部楼层
本帖最后由 惜惜2 于 2024-9-21 19:50 编辑
fuguangyi 发表于 2024-9-21 19:43
考虑公差,长度方向小些,但是,四角没有撕裂槽,折的时候会出现问题吧

展开图不标注折弯位置,怎么对刀 ...


实际图纸有2.0的释放槽,折弯线也是有的,这不是图面的主要问题,我还原没有1:1,图面上面95.2实际画的应该是95.6,但是问题不大,实际也是有问题的
学无止境
回复

使用道具 举报

163

主题

2122

回帖

522

威望

教授

积分
3746

热心助人勋章优秀会员勋章希望之星勋章嘉宾勋章

QQ
发表于 2024-9-21 19:50 | 显示全部楼层
惜惜2 发表于 2024-9-21 19:46
实际图纸有2.0的释放槽,折弯线也是有的,这不是图面的主要问题

你想说展开图做主视图,是吧,深圳那边那边有这么干的
回复

使用道具 举报

11

主题

215

回帖

1

威望

工程师

积分
289
 楼主| 发表于 2024-9-21 19:52 | 显示全部楼层
fuguangyi 发表于 2024-9-21 19:50
你想说展开图做主视图,是吧,深圳那边那边有这么干的

标注的尺寸主要是给大家评估看展开包边关系的,所以这种图纸别人审核一般是发现不了的,我发现了还非说是对的
学无止境
回复

使用道具 举报

11

主题

215

回帖

1

威望

工程师

积分
289
 楼主| 发表于 2024-9-21 19:53 | 显示全部楼层
fuguangyi 发表于 2024-9-21 19:50
你想说展开图做主视图,是吧,深圳那边那边有这么干的

主展开是可以的,更方便操作员视图,简化易懂
学无止境
回复

使用道具 举报

163

主题

2122

回帖

522

威望

教授

积分
3746

热心助人勋章优秀会员勋章希望之星勋章嘉宾勋章

QQ
发表于 2024-9-21 20:06 | 显示全部楼层
本帖最后由 fuguangyi 于 2024-9-21 20:42 编辑
惜惜2 发表于 2024-9-21 19:52
标注的尺寸主要是给大家评估看展开包边关系的,所以这种图纸别人审核一般是发现不了的,我发现了还非说是 ...


人家不就留0.15的间隙嘛,无所谓

5.png
回复

使用道具 举报

您需要登录后才可以回帖 登录 | 立即注册

本版积分规则

关闭

站长推荐上一条 /1 下一条

本站为非营利性站点,部分资源为网友搜集或发布,仅供学习和研究使用,如用于商业用途,请购买正版。站内所发布的资源,如有侵犯你的权益,请发邮件联系我们,本站将立即改正或删除。

手机版|小黑屋|野火论坛(©2007~2025) ( 苏ICP备11036728号-2 )苏公网安备 32039102000103号|站长QQ28016688

GMT+8, 2025-10-25 09:23 , Processed in 0.099882 second(s), 30 queries .

快速回复 返回顶部 返回列表