找回密码
 立即注册

QQ登录

只需一步,快速开始

查看: 12653|回复: 4

[求助] creo工程图导出到CAD 直径标注双击出现两个直径符号

[复制链接]

6

主题

152

回帖

0

威望

工程师

积分
200
发表于 2021-10-11 10:00 | 显示全部楼层 |阅读模式
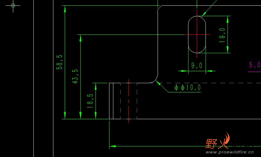
creo工程图导出到CAD 直径标注双击出现两个直径符号

直径标注

直径标注

螺纹孔标注

螺纹孔标注

63

主题

1067

回帖

82

威望

讲师

积分
1568

希望之星勋章

发表于 2021-10-11 10:50 | 显示全部楼层
有过类似的经历,creo导出到cad,编辑之后一定程度就会变形,建议直接导出pdf,或者在drw里面做好了导出cad不要再编辑了。
creo 6.0.6.0
回复

使用道具 举报

6

主题

152

回帖

0

威望

工程师

积分
200
 楼主| 发表于 2021-10-11 12:25 | 显示全部楼层
蓝沁秋 发表于 2021-10-11 10:50
有过类似的经历,creo导出到cad,编辑之后一定程度就会变形,建议直接导出pdf,或者在drw里面做好了导出cad ...

不止一张图,好多图复制到一起也会那样
回复

使用道具 举报

发表于 2021-10-11 18:47 | 显示全部楼层
支撑2楼的,像这样转出来就不要动,一动就会这样,现在我都数出PDF,CAD只是参考或者线割用的图,不去动
回复

使用道具 举报

0

主题

4

回帖

0

威望

实习生

积分
5
发表于 2024-4-10 10:11 | 显示全部楼层
我也有这个问题,等待大佬解决
回复

使用道具 举报

您需要登录后才可以回帖 登录 | 立即注册

本版积分规则

关闭

站长推荐上一条 /1 下一条

本站为非营利性站点,部分资源为网友搜集或发布,仅供学习和研究使用,如用于商业用途,请购买正版。站内所发布的资源,如有侵犯你的权益,请发邮件联系我们,本站将立即改正或删除。

手机版|小黑屋|野火论坛(©2007~2025) ( 苏ICP备11036728号-2 )苏公网安备 32039102000103号|站长QQ28016688

GMT+8, 2025-10-14 16:49 , Processed in 0.153306 second(s), 34 queries .

快速回复 返回顶部 返回列表