找回密码
 立即注册

QQ登录

只需一步,快速开始

查看: 6071|回复: 3

[已解决] 插入混合曲面在草绘时显示截面必须包含此特征的几何图元

[复制链接]

4

主题

4

回帖

0

威望

实习生

积分
9
发表于 2017-4-10 11:32 | 显示全部楼层 |阅读模式

图片

图片

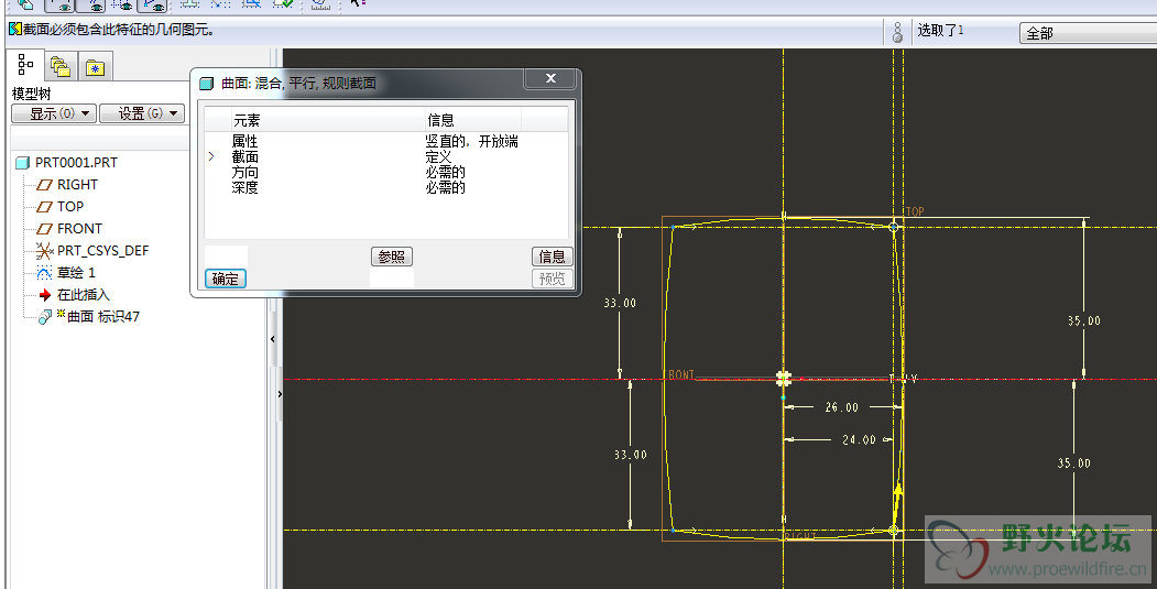
插入混合曲面在草绘时显示截面必须包含此特征的几何图元,求助大侠们如何解决呢

5

主题

207

回帖

14

威望

工程师

积分
338
发表于 2017-4-10 13:04 | 显示全部楼层
看你的图,只是画了一个截面,一个截面混合不了,鼠标右键切换截面再草绘一个

评分

参与人数 1威望 +1 收起 理由
野火 + 1 热心助人

查看全部评分

回复

使用道具 举报

82

主题

1456

回帖

252

威望

版主

积分
2225

热心助人勋章优秀会员勋章斑竹勋章希望之星勋章宣传大使勋章

发表于 2017-4-10 14:35 | 显示全部楼层
混合至少两个截面
回复

使用道具 举报

4

主题

4

回帖

0

威望

实习生

积分
9
 楼主| 发表于 2017-4-10 17:28 | 显示全部楼层
感谢各位大侠的指点,已经搞定的
回复

使用道具 举报

您需要登录后才可以回帖 登录 | 立即注册

本版积分规则

关闭

站长推荐上一条 /1 下一条

本站为非营利性站点,部分资源为网友搜集或发布,仅供学习和研究使用,如用于商业用途,请购买正版。站内所发布的资源,如有侵犯你的权益,请发邮件联系我们,本站将立即改正或删除。

手机版|小黑屋|野火论坛(©2007~2025) ( 苏ICP备11036728号-2 )苏公网安备 32039102000103号|站长QQ28016688

GMT+8, 2025-11-4 19:38 , Processed in 0.124312 second(s), 31 queries .

快速回复 返回顶部 返回列表