找回密码
 立即注册

QQ登录

只需一步,快速开始

查看: 15318|回复: 16

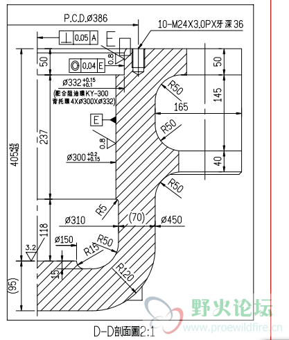
[求助] 请问这个油缸的上半部分怎么处理,画出来之后总感觉不对

[复制链接]

3

主题

16

回帖

0

威望

实习生

积分
25
发表于 2014-12-7 22:46 | 显示全部楼层 |阅读模式
这是我用creo2.0画的以及原先给出的二位图。求助!谢谢!

图2

图2

俯视图

俯视图

主视图

主视图

剖视图

剖视图

图1

图1

右视图

右视图

图3

图3

剖视图

剖视图

85

主题

1379

回帖

249

威望

讲师

积分
2416

原创先锋勋章热心助人勋章优秀会员勋章希望之星勋章

发表于 2014-12-8 08:12 | 显示全部楼层
最初的工程图呢?你这些视图不应该加那么多虚线,而是使用剖切,搞这么些虚线让人怎么看图
回复

使用道具 举报

3

主题

16

回帖

0

威望

实习生

积分
25
 楼主| 发表于 2014-12-8 08:27 | 显示全部楼层
那些二维图就是最初的图。我也感觉很无奈。画出来总感觉不对。
回复

使用道具 举报

22

主题

315

回帖

27

威望

工程师

积分
445
发表于 2014-12-8 14:52 | 显示全部楼层
有张完整的图就好了。
回复

使用道具 举报

0

主题

43

回帖

0

威望

实习生

积分
48
发表于 2014-12-28 12:05 | 显示全部楼层
本帖最后由 pzhzshun 于 2014-12-28 12:12 编辑

画了一个,不知道是否正确。
油缸.pdf (63.1 KB, 下载次数: 6)
快照4.png
快照5.png


回复

使用道具 举报

3

主题

16

回帖

0

威望

实习生

积分
25
 楼主| 发表于 2014-12-28 13:14 | 显示全部楼层
本帖最后由 guwang201 于 2014-12-28 13:22 编辑

嗯,谢谢。可否分享下你的prt文件?上半部那块凹凸的倒圆角,做的跟图纸相差挺大的
回复

使用道具 举报

0

主题

43

回帖

0

威望

实习生

积分
48
发表于 2014-12-29 00:03 | 显示全部楼层
guwang201 发表于 2014-12-28 13:14
嗯,谢谢。可否分享下你的prt文件?上半部那块凹凸的倒圆角,做的跟图纸相差挺大的

Creo 3.0画的。
油缸.part1.rar (128 KB, 下载次数: 2)
油缸.part2.rar (82.51 KB, 下载次数: 2)
回复

使用道具 举报

3

主题

16

回帖

0

威望

实习生

积分
25
 楼主| 发表于 2014-12-29 08:00 | 显示全部楼层
谢谢了。虽然我的creo2.0无法打开!
回复

使用道具 举报

0

主题

43

回帖

0

威望

实习生

积分
48
发表于 2014-12-29 08:31 | 显示全部楼层
guwang201 发表于 2014-12-29 08:00
谢谢了。虽然我的creo2.0无法打开!

这里有个插件,去下载来试一试。
http://www.proewildfire.cn/thread-124104-1-1.html
回复

使用道具 举报

0

主题

43

回帖

0

威望

实习生

积分
48
发表于 2014-12-29 08:36 | 显示全部楼层
guwang201 发表于 2014-12-29 08:00
谢谢了。虽然我的creo2.0无法打开!

转了个 stp 格式的,你可以打开看看。
yg.part1.rar (128 KB, 下载次数: 1)
yg.part2.rar (8.91 KB, 下载次数: 1)
回复

使用道具 举报

您需要登录后才可以回帖 登录 | 立即注册

本版积分规则

关闭

站长推荐上一条 /1 下一条

本站为非营利性站点,部分资源为网友搜集或发布,仅供学习和研究使用,如用于商业用途,请购买正版。站内所发布的资源,如有侵犯你的权益,请发邮件联系我们,本站将立即改正或删除。

手机版|小黑屋|野火论坛(©2007~2025) ( 苏ICP备11036728号-2 )苏公网安备 32039102000103号|站长QQ28016688

GMT+8, 2025-11-6 06:29 , Processed in 0.146592 second(s), 28 queries .

快速回复 返回顶部 返回列表